AVA Programm Highlights für Bauprofis, die mehr als nur ausschreiben

Entdecken Sie alle erweiterbaren Module in unserem AVA Programm AVA.relax, die Sie neben der klassischen AVA-Anwendung erheblich unterstützen. Mit unseren eigens entwickelten Programmerweiterungen wie BIM IFC, Bautagebuch, Bauzeitenmanagement, DIN 276 Kostenmanagement und vieles mehr sind Sie als Bauprofi für Ihre nächsten Bauvorhaben hervorragend ausgestattet und profitieren vom idealen Zusammenspiel aller Baudaten in dem AVA-Programm. Damit brauchen Sie nicht mehr unzählige unterschiedliche Programme, sondern haben alles in einer Software. Damit gehören endlich mehrere unterschiedliche Programme rund um AVA, Bau- und Kostenmanagement der Vergangenheit an. Sie sparen erwiesenermaßen erheblich mehr Zeit und Kosten.

Modernes AVA-Programm

AVA.relax bietet dem Anwender weit mehr als nur Ausschreibung, Vergabe und Abrechnung. Die wichtigsten und modernsten Funktionen im Ausschreibungsprogramm im Überblick

EKT Kosten & Kalkulation

Die professionelle EKT-Kalkulation ist für alle am Bau tätigen, die jede Teilleistungen zur Leistungsposition ganz genau kalkulieren müssen. Alle Infos zur EKT-Kalkulation in AVA.relax

Zeitwertermittlung

Die Zeitwertermittlung in AVA.relax ist das optimale Werkzeug für alle Gutachter und Schadensermittler um Neuwerte und Zeitwerte von LVs zu ermitteln. Alle Informationen zur Zeitwertermittlung für Gutachter und Schadensermittler

Bautagebuch mit mobiler App

Mit dem Bautagebuch und der mobilen App erstellen und verwalten Sie professionell Ihre Bautagesberichte zu Ihrem Bauvorhaben. Alle Informationen zum Bautagebuch mit mobiler App für Ihre Bautagesberichte im Überblick

Dokumentenmanagement

Mit dem Dokumentenmanagement dokumentieren Sie sämtliche Ausgaben mit Zeit- und Bearbeitungsdaten nachvollziehbar. Alle Infos zum Dokumentenmanagement in AVA.relax

DIN 276 Kostenmanagement

Mit dem DIN 276 Kostenmanagement überwachen und planen Sie alle Bauprojektkosten und können Ihr Baubudget verwalten. Alle Informationen zum DIN 276 Kostenmanagement

Raumbuch

Mit dem intelligenten Gebäude- und Raumbuch in AVA.relax erstellen Sie in kürzester Zeit Raumbücher und erhalten eine schnelle Kostenübersicht für Ihren Bauherren. Alle Informationen zum intelligenten Gebäude- und Raumbuch

Elementkalkulation

Die klassische Elementkalkulation ist das optimale Werkzeug für die Erstellung von Kalkulationen nach der Bauelementmethode. Alle Informationen zur klassischen Elementkalkulation

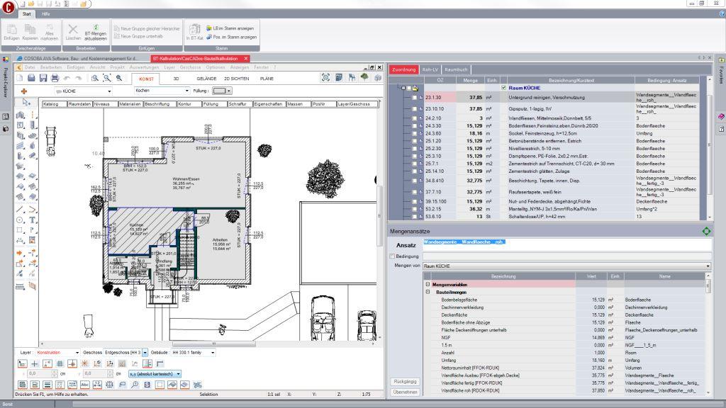
Bauteilkalkulation CasCADos

Mit der Schnittstelle zu CasCADos erstellen Sie automatisch Ihre Mengenermittlungen oder Kalkulationen aus Ihrer CAD-Datei in AVA.relax. Alle Infos zur CasCADos Schnittstelle in AVA.relax

BIM IFC Viewer Import

Mit dem BIM IFC Viewer Import sehen Sie Ihr 3D gezeichnetes Modell und dient zur automatischen Erstellung von Mengenermittlungen und Leistungsverzeichnissen. Alle Informationen zum BIM IFC-Viewer

Bauzeitenplan und Bauzeitenmanagement

Mit dem Bauzeitenplaner erstellen und verwalten Sie Ihr Bauvorhaben auf der zeitlichen Ebene. Alle Informationen zum Bauzeitenplan und Bauzeitenmanagement in der AVA-Software im Überblick

DBD BIM-LV-Container

DBD BIM-LV Container sind Bauwerksmodelle (IFC) und Leistungsverzeichnisse (GAEB) zueinander verknüpft und erstellen in AVA.relax automatisch Ihre LVs. Alle Informationen zur DBD BIM-LV-Container Schnittstelle in AVA.relax

XRechnung

Elektronische Rechnungen an Bund, Länder & Gemeinden in AVA.relax

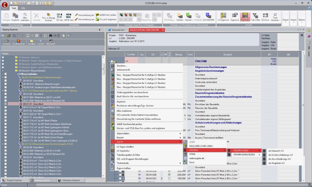
ÖNORM A2063

Die ÖNORM A2063 Schnittstelle in AVA.relax ist der ideale Weg zum Datenaustausch für Bauausschreibungen in Österreich und darüber hinaus. Alle Informationen zum ÖNORM A2063 Datenaustausch

BKI Kostenplaner Import

Mit dem BKI Baukostenindex importieren Sie Kosten und Mengen aus dem BKI-Kostenplaner in das AVA.relax. Alle Informationen zur BKI Baukostenindex Import Schnittstelle

Editionen & Preise zu AVA.relax

Steigen Sie jetzt ein mit unserer Business-Edition zu AVA.relax ab 1.099,- Euro zzgl. MwSt.

AVA.relax 8

ab 1.099 €
  • Ausschreibungen
  • Mengenermittlung
  • Angebotsverwaltung
  • Preisspiegel
  • Vergabe
  • Datenaustausch GAEB 90, 2000, XML
fas fa-cubes

Zusätzlich zur Business-Edition bietet AVA.relax auch die Business-plus-Edition und die Professional-Edition, die noch mehr Funktionen und zusätzliche Programm-Module enthalten. Diese Module decken die Leistungsphasen 1-9 der HOAI vollständig ab, sodass Sie bestens für Ihre kommenden Bauprojekte gerüstet sind.

Vergleichen Sie jetzt die verschiedenen Editionen unserer AVA-Software...

Kostenloser Download & Test


Sind Sie bereit für relaxtes AVA, Bau- und Kostenmanagement auf höchstem Niveau?


Testen Sie jetzt AVA.relax unverbindlich und kostenlos mit vollem Funktionsumfang und überzeugen Sie sich von der Leistungsfähigkeit unserer AVA Software!

 

 

Wir nutzen Cookies auf unserer Website. Einige von ihnen sind essenziell für den Betrieb der Seite, während andere uns helfen, diese Website und die Nutzererfahrung zu verbessern (Tracking Cookies). Sie können selbst entscheiden, ob Sie die Cookies zulassen möchten. Bitte beachten Sie, dass bei einer Ablehnung womöglich nicht mehr alle Funktionalitäten der Seite zur Verfügung stehen.